ideal4000ablak
ideal4000-1

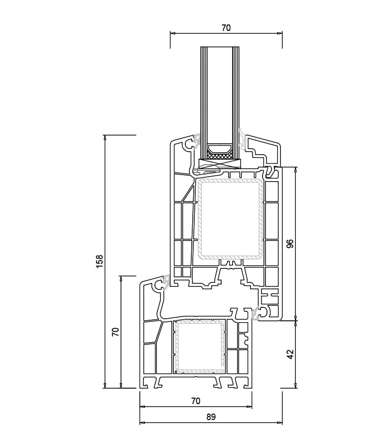
IDEAL 4000

Az IDEAL 4000 sorozat az Aluplast kültéri ajtómegoldásainak alapjavaslata. A 70 mm mélységű, többkamrás szerkezetnek és a hőszigetelő küszöbnek köszönhetően nagyon jó hőszigetelési paraméterekkel rendelkezik.

SZABVÁNY ALUPLAST SZÍNEK

colorCube
Mahagóni
colorCube
Sötét Tölgy
colorCube
Arany Tölgy
colorCube
Dió
colorCube
Paliszander
colorCube
Szürke
colorCube
Antracit
colorCube
Antracit Homok
colorCube
Khaki Tölgy
colorCube
Turner Tölgy
colorCube
Sheffield Tölgy Alpina
colorCube
Sheffield Tölgy Beton
colorCube
Turner Tölgy Toffee
colorCube
Traffic Fehér
colorCube
Szürke
colorCube
Árnyékszürke
colorCube
Bazalt Szürke
colorCube
DB703
colorCube
Antracit Szürke
colorCube
Jet Black

Katalógus letöltése

Katalógus Megtekintése Új Fülön

További termékeink ebben a kategóriában